attraktive 3-Zimmer-Wohnung mit Balkon und Stellplatz!
44269 Dortmund, Wohnung zum Kauf
Kontaktdaten
-
NameFrau Susanne Stocker
-
AdresseWestfalendamm 229
44141 Dortmund -
E-Mail Direkt
-
Tel. Durchwahl
-
Mobil
-
Fax+49 231 9411455
Objektdaten
-
Objekt IDSTO-01880
-
ObjekttypWohnung
-
Adresse44269 Dortmund
-
Wohnfläche ca.88 m²
-
HeizungsartZentralheizung
-
Baujahr1984
-
Zustandgepflegt
-
Stellplätze gesamt1
-
Käuferprovision3,57% inkl. MwSt.
-
Kaufpreis225,000 EUR
Energieausweis
-
EnergieausweistypVerbrauchsausweis
-
Ausstellungsdatumab dem 1.5.2014
-
Baujahr1984
-
PrimärenergieträgerGas
-
Endenergieverbrauch77.40 kWh/(m²·a)
-
EnergieeffizienzklasseC
Objektbeschreibung
Beschreibung
Angeboten wird eine attraktive 3-Zimmer-Eigentumswohnung in einem gepflegten Mehrfamilienhaus (Baujahr 1984) im beliebten Dortmunder Stadtteil Benninghofen.
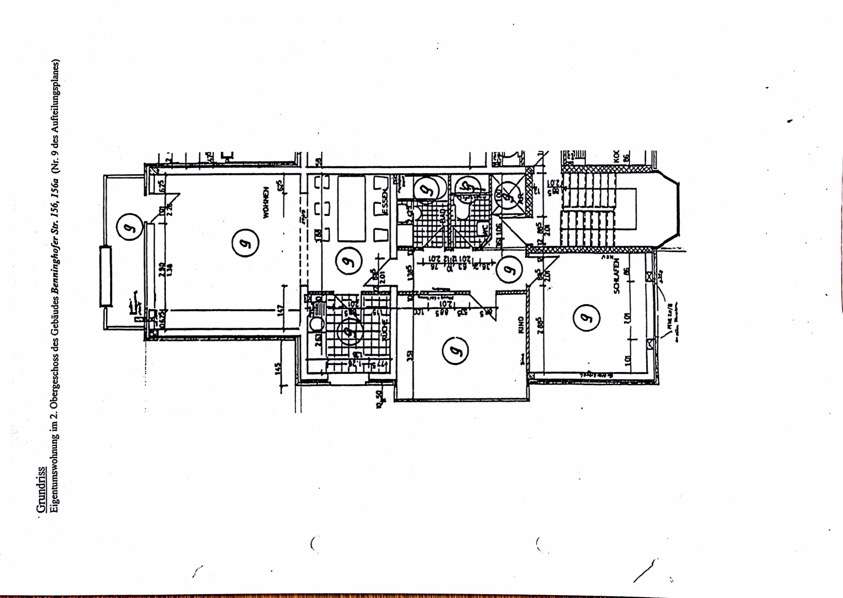
Die Wohnung im 2. OG verfügt über eine Wohnfläche von ca. 88 qm, die sich wie folgt aufteilen:
Ausgehend von einem freundlichen Eingangsflur nebst praktischem Abstellraum erreicht man das helle Wohnzimmer, welches Zugang auf den schönen Sonnenbalkon bietet. Weiter vorhanden ist ein Schlafzimmer sowie ein weiteres Kinder- oder Arbeitszimmer. Abgerundet wird das Bild durch ein (innenliegendes) Badezimmer mit Dusche sowie ein gesondertes WC.
Ein eigener Kellerraum sowie ein Wasch- und Trockenraum für die Gemeinschaft sind vorhanden.
Die Immobilie wird mit einer zentralen Gasheizung beheizt; die Warmwasseraufbereitung erfolgt über Durchlauferhitzer.
Zu der Wohnung gehört ein Stellplatz in der hauseigenen Tiefgarage, der bereits im Kaufpreis enthalten ist!
Die Wohnung ist seit 7 Jahren vermietet; die monatliche Kaltmiete beträgt € 702,- zzgl. einer Nebenkostenvorauszahlung von derzeit monatlich € 315.
Ausstattung
Die Wohnung befindet sich in einem altersgerecht guten Zustand.
Ausstattung.
- Kuststofffenster
- Bodenbeläge: Laminat, Fliesen
- zentrale Gasheizung
- Warmwasser über Durchlauferhitzer
- Balkon
- Tiefgaragenstellplatz
- eigener Kellerraum
- gemeinschaftliche Waschküche / Trockenraum
Sonstige Informationen
Das Hausgeld beläuft sich für die Wohnung und den Tiefgaragenstellplatz derzeit auf monatlich € 292,00.
Weitere Informationen / Unterlagen / Besichtigungen gerne auf Anfrage!
Die Angaben in diesem Exposé beruhen auf uns erteilten Informationen. Wir bemühen uns, möglichst vollständige und richtige Angaben zu erhalten und weiterzuleiten. Eine Haftung für die Richtigkeit / Vollständigkeit können wir jedoch nicht übernehmen. Vielen Dank für Ihr Verständnis.
Lage
Benninghofen im südöstlichen Stadtgebiet gehört nicht ohne Grund zu den beliebtesten Wohngegenden Dortmunds:
Die Dortmunder Innenstadt ist in nur wenigen Fahrminuten zu erreichen; ebenso befinden sich sämtliche Versorgungseinrichtungen des täglichen Bedarfs, wie Lebensmittelgeschäfte, Apotheken, Ärzte, Schulen, Kindertagesstätten, Freizeit- und Erholungseinrichtungen etc. in unmittelbarer Nähe.
Zudem besticht der Standort durch die grüne Umgebung (Lohbachtal, Marksbach, Niederhofener Holz).
Durch die nahegelegene A40, B1 gibt es Zugang zu allen wichtigen Verkehrswegen des Ruhrgebiets.
Mit den öffentlichen Verkehrsmitteln ist man von dieser Immobilie aus gut vernetzt. Somit wird ein hohes Maß an Mobilität in alle Richtungen geboten.
Dieser attraktive Standort garantiert eine stets gute Vermietbarkeit der Wohnung!
Die dargestellte Position der Immobilie ist nur eine ungefähre Angabe.

